Fiero フィエロ
- リビング
- 温泉露天風呂
- リビングと和室
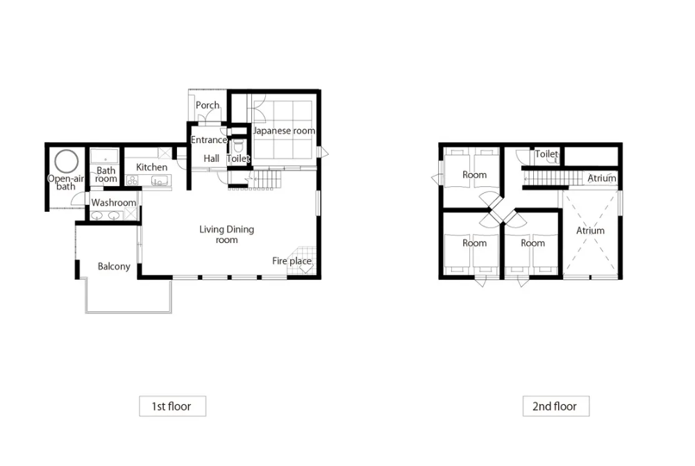
- 間取り図
| 別荘地名 | 那須ハイランド |
|---|---|
| 物件名/分譲地 | Fiero フィエロ |
| 物件種別 | 戸建て |
| 住所 | 栃木県那須郡那須町大字高久乙遅山 |
| 価格 | 10500万円 |
|---|---|
| 物件概要 | 天然の温泉露天風呂が魅力の2階建て物件です。美しい自然に囲まれた那須ハイランド別荘地の人気エリアに建ち、管理事務所にも近くて便利です。リビングルームには薪ストーブが設置されていて、その上の天井は吹き抜けとなっているので、冬季でも部屋全体が暖かく、ゆったりとした時間を過ごせます。 2階の外には露天風呂が設置されており、バスルームから直接移動できるように設計されているので、天然温泉にゆっくりとつかりながら自然の景色や鳥の鳴き声などを楽しむことができます。 1階には和室、2階には洋間が3室あり、トイレも2か所設置されているので宿泊人数が多くても安心できます。 近隣との距離が離れているので、バルコニーでBBQをしたり食事をするときもプライベートを保てます。 〈貸別荘運営について〉 別荘条件付価格(8500万円)も選択可能な物件です。 本物件は既に貸別荘運営をしており、そのままご活用いただくことが可能です。 お客様ご自身の別荘として利用しながら、ご自身で利用されない日は管理会社に委託して貸別荘として運営します。 ※貸別荘収入;直近1年間(2025年7月時点):運営収入495万円
あけぼの平268 |
| 取引態様 | 代理 |
| 土地面積 | 1,188㎡ |
| 建物面積 | 135.03㎡ |
| 間取 | 4LDK |
| 構造 | 木造亜鉛メッキ鋼板葺 2階建 |
| 完成時期 | 2022年7月 |
| 入居時期 | 相談 |
| 水道 | 私設水道 |
| ガス | プロパン |
| 電気 | 東京電力 |
| 排水 | 合併浄化槽 |
| 負担金 | 共益費:年間57,970円(税込) 建物管理費:年間112,200円(税込)詳細はお問い合わせ下さい。 温泉は要加熱、温泉を引き込む場合には別途権利金等が発生します。 詳細はお問い合わせ下さい。 |




