Clair クレール
- 外観
- テラス
- ダイニング
- リビング
- 洋室
- 洗面
- ダイニング
- リビング
- 薪ストーブ
- リビング
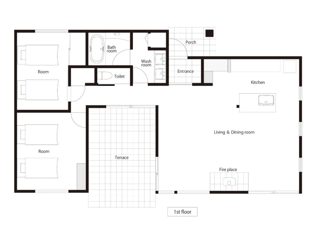
- 間取り図
| 別荘地名 | 那須ハイランド |
|---|---|
| 物件名/分譲地 | Clair クレール |
| 物件種別 | 戸建て |
| 住所 | 那須郡那須町大字高久乙遅山 |
| 価格 | 7000万円 |
|---|---|
| 物件概要 | 栃木ミサワハウス施工による美しい2LDK平屋の築浅物件です。貸し別荘条件付価格(¥50,000,000)も選択可能となっています。 那須ハイランド管理事務所のすぐ近くなので、街道へのアクセス良好な場所に位置しています。 洗面所には24時間換気が取り付けられていますので、浴室から出る湿気が除去されて設置されているタオルなども衛生的に保管できます。また洗面台も2か所ありますので、使用が重なることなく便利です。 リビングダイニングと居室の間にルーフ付きのテラスが広がり、雨天などでもテラスでのBBQやお食事などもお楽しみいただけます。 薪ストーブも設置されていますので、冬季でも部屋の中で暖かくゆったりとした時間をお過ごしいただけます。 リビングダイニングではスクリーンのような大きな窓ガラスに映し出される四季折々の景色を眺めながらおくつろぎいただけます。 つつじヶ丘201-1 価格:¥7,000,000 貸し別荘条件付価格:¥50,000,000 〈貸別荘運営について〉 本物件は既に貸し別荘の運営をしており、そのままご活用頂く事が可能です。 お客様ご自身の別荘として利用しながら、ご自身で利用しない日は管理会社に委託して貸別荘として運営いたします。 |
| 取引態様 | 代理 |
| 土地面積 | 1139㎡(344坪) |
| 建物面積 | 94㎡(28坪) |
| 間取 | 2LDK |
| 構造 | 木造 |
| 完成時期 | 2023年11月 |
| 入居時期 | 相談 |
| 水道 | 私設水道 |
| ガス | 個別プロパンガス |
| 電気 | 東京電力 |
| 排水 | 浄化槽 |
| 負担金 | 共益費:年間34,760円(税込) 建物管理費:年間102,000円(税込)詳細はお問い合わせ下さい。 温泉を別途権利金等が発生します。温泉を引き込む際には別途権利金等が発生します。詳細はお問い合わせ下さい。 |











