Flamme フラム
- リビング
- 和室
- 浴室
- 洋室
- 外観
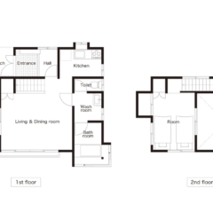
- 間取り図
| 別荘地名 | 那須ハイランド |
|---|---|
| 物件名/分譲地 | Flamme フラム |
| 物件種別 | 戸建て |
| 住所 | 栃木県那須郡那須町大字高久乙字遅山 |
| 価格 | 1000万円 |
|---|---|
| 物件概要 | 自然の中でシックな外観の2LDK物件。薪ストーブを備えて冬の季節にも過ごしやすい。 ■洗面台、トイレ、玄関サッシのリフォーム済み。 ■駐車場の整備済み。 ■県道近くでアクセスしやすい立地。 三沢台40‐17 |
| 取引態様 | 仲介 |
| 土地面積 | 276㎡(83.49坪) |
| 建物面積 | 68.3㎡(20.6坪) |
| 間取 | 2LDK |
| 構造 | 木造2階建て |
| 完成時期 | 1991年 |
| 入居時期 | 即時 |
| 水道 | 私設水道 |
| ガス | プロパン |
| 電気 | 東京電力 |
| 排水 | 浄化槽 |
| 負担金 | 共益費:年間32,890円(税込) 建物管理費:年間99,000円(税込)詳細はお問い合わせ下さい。 温泉は要加熱、温泉を引き込む際には別途権利金等が発生します。詳細はお問い合わせ下さい。 |






