Framboise フランボワーズ
- リビング
- リビング
- リビング
- 薪ストーブ
- ダイニング
- ダイニング
- 居室
- 居室
- 和室
- 和室
- 洗面
- 浴室
- 浴室
- 玄関
- 玄関
- テラス側
- テラス
- テラス
- 庭
- 庭・ドッグラン
- ドッグラン
- 外観
- 外観
- 駐車スペース
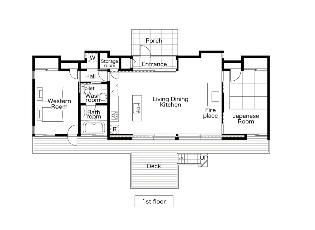
- 間取り図
| 別荘地名 | 那須ハイランド別荘地 |
|---|---|
| 物件名/分譲地 | Framboise フランボワーズ |
| 物件種別 | 戸建て |
| 住所 | 栃木県那須郡那須町大字高久乙字遅山 |
| 価格 | 2900万円 |
|---|---|
| 物件概要 | ゆっくりくつろげる和モダンテイストの平屋物件。リビングからウッドデッキそしてプライベートドッグランとつながる空間。薪ストーブで冬は暖かく、夏は大きく開口できるサッシや大型引き戸を備えた造りで解放感を演出します。外の風景を眺めながら利用できるジャグジー付きのお風呂完備。 <貸別荘運営について> ご自身の別荘として利用しながら、ご利用されない日は当社が管理を受託して貸別荘として運営します。 うぐいす台81・82 |
| 取引態様 | 仲介 |
| 土地面積 | 836m²(252坪) |
| 建物面積 | 90.74m²(27.44坪) |
| 間取 | 2LDK |
| 構造 | 木造スレートぶき2階建 |
| 完成時期 | 2013年10月 |
| 入居時期 | 相談 |
| 水道 | 私設水道 |
| ガス | 個別プロパン |
| 電気 | 東京電力 |
| 排水 | 個別浄化槽 |
| 負担金 | 共益費:年間48,290円(税込) 建物管理費:年間112,200円(税込)詳細はお問い合わせ下さい。 温泉は要加熱、温泉を引き込む際には別途権利金等が発生します。詳細はお問い合わせ下さい。 |

























