不動産のクリス【公式】圧倒的物件数 |那須高原エリア・那須町・那須塩原市の中古別荘&リゾート不動産の売却・購入・査定・買取
お気軽にお問い合わせください
0287-72-6600
[受付] 9:00~15:00

売買物件を探す

Fleur フルール

別荘地名守子の郷
物件名/分譲地Fleur フルール
物件種別アパート・マンション
住所栃木県那須郡那須町大字高久丙
https://maps.app.goo.gl/KyRAFU6RqvpzHBS47
価格700万円
物件概要

落ち着いた別荘地にある那須で貴重なマンション物件です。

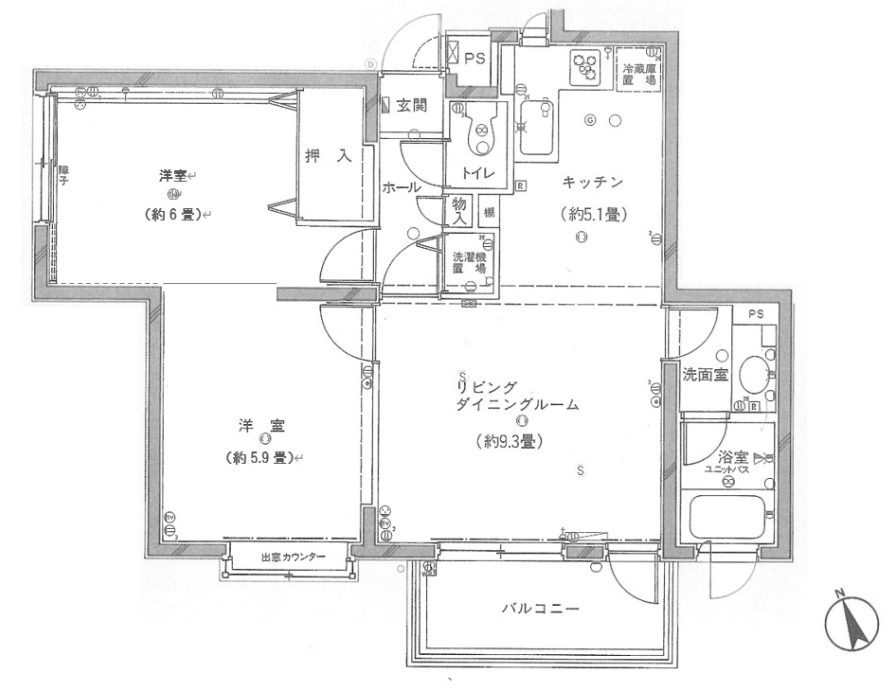
■2LDKの使いやすい間取りです。

■マンションの各住戸は独立性高いプライバシー重視の設計。

■高気密・高断熱で快適、ワンフロアで生活しやすい環境。

■那須でも好立地エリア。スーパーダイユ―やドラックストアなど車で5分圏内。

アジュールモリコ 西館101号室

取引態様仲介
建物面積54.81m²(16.58坪)
間取2LDK
構造鉄骨鉄筋コンクリート造/地上2階建て1階部分
完成時期1990年7月
入居時期相談
都市計画区域内無指定地域
接面道路5.5mアスファルト舗装道路、私道負担なし
建ぺい率30%、2 階建まで
水道公営水道
ガス集中プロパンガス
電気東京電力
排水集中浄化槽
負担金

管理:アジュールモリコ西館管理組合

管理費 20,900円(月額)
修繕積立金 10,180円(月額)

備考

建築確認/第3863号〔H1.10.31〕

道路位置指定/第73055号〔S47.4.5〕

権利形態/専有部分:区分所有権

共用部分:専有面積割合による所有権の共有