不動産のクリス【公式】圧倒的物件数 |那須高原エリア・那須町・那須塩原市の中古別荘&リゾート不動産の売却・購入・査定・買取
お気軽にお問い合わせください
0287-72-6600
[受付] 9:00~15:00

売買物件を探す

Mickey&Minnie ミッキー&ミニー(成約済)

 

別荘地名別荘地外
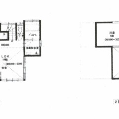
物件名/分譲地Mickey&Minnie ミッキー&ミニー(成約済)
土地面積226㎡
建物面積68.72㎡
間取2LDK+ロフト