オリオン 木の家の物語(成約済)
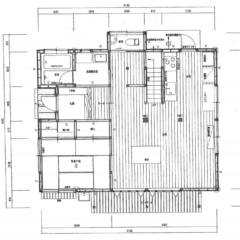
- 一階間取り
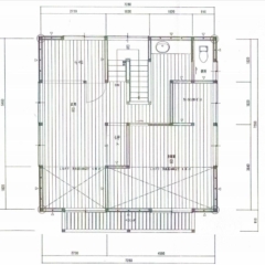
- 二階間取り
- 小屋間取り
- 三和土に亀さんがいます
- 広々としたリビングルーム
- 大きな窓で開放感があります
- シーリングファンがついています
- 特別注文のサッシは、アコーディオン式で全面開放できます
- デッキというより縁側と呼びたい。ここでスイカを食べたい。
- リビングからヤマザクラと田の眺望が
- 一階の和室
- 和室の天井
- 和室に続く屋根付きデッキでは洗濯物を干せます
- すっきりとしたキッチン
- キッチンの板材も杉です
- 勝手口があります
- 玄関の縦格子のうつくしさ
- 階段下に収納があります
- 使いやすいシャンプードレッサー
- まるでお蕎麦屋さんのトイレのようです
- 大きな真っ白なタイルはメンテナンスがしやすいです
- 2階への階段
- 2階の広間
- 2階のベランダです
- 2階からお庭を眺める
- 広間から振り返ったところ
- 和紙を貼った扉の奥は広めの納戸です
- ロフトにははしごで上がります
- こちらにもロフト的スペースが
- 主寝室です
- 主寝室の奥にクローゼットの扉が見えています
- 階段のペンダントもかわいい
- 2階洗面スペース
- 2階のトイレ
- 玄関から外を見る
- 玄関からゲートまでのアプローチ
- 小屋は書斎的な離れになっています。この後ろに屋根付きカーポート。
- 小屋内にもエアコン、光ケーブル引き込み済み
- ガルバリウム鋼材のとい
- 生垣の風景がどこか懐かしく
- 板塀もまたうつくし
- おかえりなさいの声が聞こえてくるゲートです
| 別荘地名 | 別荘地外 |
|---|---|
| 物件名/分譲地 | オリオン 木の家の物語(成約済) |
| 土地面積 | 681㎡ |
| 建物面積 | 120.06 |
| 間取 | 4LDK+S+離れ |
















































